Mugello Porzione Terratetto di Villa Padronale
Mugello Porzione Terratetto di Villa Padronale
Borgo San Lorenzo, nel cuore del Mugello fiorentino, nel verde ma nello stesso tempo vicinissimo ai servizi, abbiamo una porzione di villa padronale, attualmente in ristrutturazione, che verrà venduta nuova chiavi in mano, in classe energetica A.
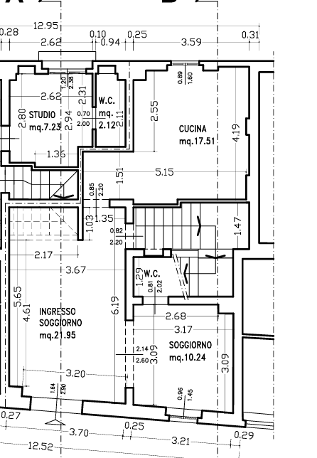
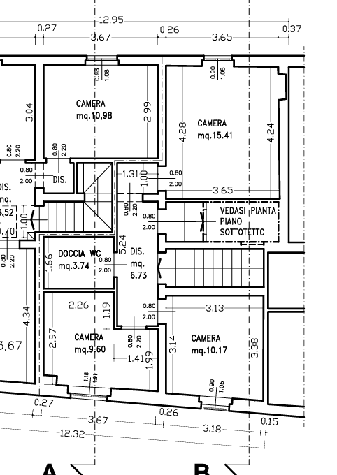
La porzione si sviluppa su 2 piani fuori terra e avrà ingresso indipendente, anche carrabile, direttamente dalla porzione di circa 300 mq di giardino privato di pertinenza. Il terratetto è proposto come da progetto allegato, con la seguente disposizione: al piano terra rialzato avremo un ingresso soggiorno, una cucina abitabile, un salotto, un angolo guardaroba, un bagno. attraverso un’ampia scala si accede al piano primo dove troveremo tre camere da letto, e altri due bagni. le rifiniture, come da capitolato consultabile in ufficio, sono medio alte. l’impianto di riscaldamento sarà con pompa di calore (caldo/freddo), come previsto dalle nuove normative di efficientamento energetico.
la consegna è prevista a 8 mesi dalla firma del preliminare di compravendita.
Il pagamento prevede un anticipo al quale faranno seguito tre stati di avanzamento e saldo finale alla chiusura dei lavori corrispondente al Rogito notarile di compravendita.
Questo acquisto rappresenta un ottima scelta per chi desidera costruire la propria casa potendo personalizzare i lavori da eseguire.
In ufficio sono disponibili le planimetrie e capitolato.
La richiesta è euro 325000








